Stagene fester vel i taksperrerne så strekket i dem påvirker vel ikke toppsvillen nevnverdt?
Hvis du har tenkt å ha stag på hver sperre stemmer det. Nå var vel litt av poenget ditt å ha stag på f.eks hver tredje sperre, eller kanskje med enda større avstand? Da belastes toppsvillen horisontalt.
Jepp. Det er veldig viktig at alle takstolene sitter god fast i toppsvillen, og at denne er så stiv som mulig. I så fall spiller det antagelig ikke så stor rolle om man fester stagene i takstoler eller svill. Har sett begge variantene i bruk. Her er forøvrig en god forklaring på hvordan man fjerne 2 av 3 undergurter. På engelsk. https://www.finehomebuilding.com/1992/10/01/framing-a-cathedral-ceiling Nøkkelparagrafen er denne: You can get away with removing two out of every three collar ties because the eaves-wall plate acts as a horizontal beam. It transfers the outward thrust of the two intervening 16-in. o. c. rafters out to where the opposing plates are tied together by the remaining collar ties.
Eksempelet du linker til har 16 in (40cm) mellom hvert sperrepar c-c. Da blir det 120cm mellom hver stag.
Å sette cc120 mellom sperrene med stag bør nok gå å få til (er vanlig med dette avstandet i eks. Sverige) og det er selvfølgelig også mulig å sette inn mellomsperrer, slik at det blir cc60.
Men å ta vekk 2/3 stag på en typisk norsk takkonstruksjon, med cc60 og muligens høyere snølaster enn linken?, da med 180cm mellom stagene - det er noe som i hvert fall bør regnes på.
Eksempelet du linker til har 16 in (40cm) mellom hvert sperrepar c-c. Da blir det 120cm mellom hver stag.
Å sette cc120 mellom sperrene med stag bør nok gå å få til (er vanlig med dette avstandet i eks. Sverige) og det er selvfølgelig også mulig å sette inn mellomsperrer, slik at det blir cc60.
Men å ta vekk 2/3 stag på en typisk norsk takkonstruksjon, med cc60 og muligens høyere snølaster enn linken?, da med 180cm mellom stagene - det er noe som i hvert fall bør regnes på.
Absolutt, her skal det regnes! Men greit å ha noen ideer til hva som muligens kan la seg gjøre først
Kanskje man kan bruke gitterbjelke som toppsvill, lage bratt tak, og sett opp utvendige levegger som skal ta vindlast? Da kan man kanskje få hele stua (og kjøkkenet) uten undergurt/strekkstål.
Alternativt ha noen ekstreme dimensjoner på takåser som går over hele rommet uten støtte?
Brattere tak har større egenvekt og derved ikkje noko mindre horisontalkraft utover. Snølasta kan beregnes noko mindre nå ein passerer 30 grader, det gjer mindre dimensjonerende last.
Større høgde gjer jo naturligvis større vindlast.
Ein anna måte å unngå undergurt er å lage ein trekant i overgang vegg/tak, det låser av veggen og flytter kreftene fra taket ned i grunnmur. Eg har både denne løysinga og løysing som nevnt av deg med heile bøyde limtre dragere (tre-ledd ramme med kumme hjørner) i løa mi.
Siste redigering: Sunday, March 3, 2019 10:41:15 AM av oblygre
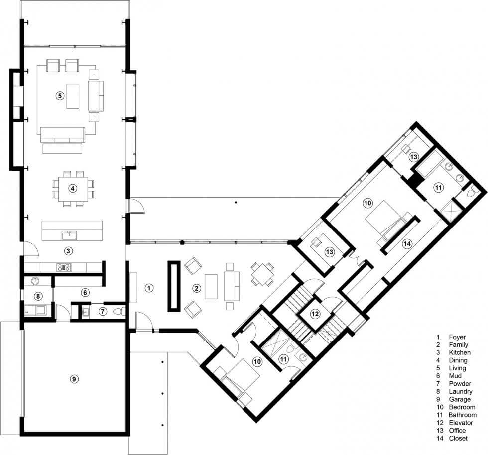
Legg merke til tykkelsen på veggene. Her er hele kjøkkenbenken plassert inni ytterveggen. I tillegg ser man at veggen stikker utenfor benkeplata, og bærebjelkene er innenfor dette også. I tillegg er det sikkert isolasjon på yttersiden av benken. Altså er nok veggene over 1m tykke.
Legg merke til tykkelsen på veggene. Her er hele kjøkkenbenken plassert inni ytterveggen. I tillegg ser man at veggen stikker utenfor benkeplata, og bærebjelkene er innenfor dette også. I tillegg er det sikkert isolasjon på yttersiden av benken. Altså er nok veggene over 1m tykke.
Tykkelsen på veggen er bare en illusjon. blar man ned i artikkelen, ser man utstikket på utsiden.
også plantegningen viser hvordan de har "jukset" med veggtykkelsen.
Flott hus ja! Løsningen for å holde veggene sammen her er sikkert samme prinsipp som i tegningen til oblygre over. Jeg skal ikke bygge et bolighus denne gangen, men en låve/lager/verksted-aktig bygning. Ikke fullt 40.000.000 i budsjett heller
Tykkelsen på veggen er bare en illusjon. blar man ned i artikkelen, ser man utstikket på utsiden.
også plantegningen viser hvordan de har "jukset" med veggtykkelsen.
men skikkelig stilig hus dog.
Jeg anser det ikke som juks at veggene bare er så tykke der de trenger å være det - altså ved de 3 søylene/takstolene på hver side hvor det mangler undergurt. Ved de øvrige søylene/takstolene er det enten gavelvegg , innervegg eller hems (som gir undergurt). På disse tre stedene er det altså behov for tykk yttervegg for å skjule den nødvendige avstivingen som følge av manglende undergurt - og de har klart å skjule/utnytte dette til kjøkkenbenk, tv-vegg og vinduskarmer med sitteplass.
Jepp. Det er veldig viktig at alle takstolene sitter god fast i toppsvillen, og at denne er så stiv som mulig. I så fall spiller det antagelig ikke så stor rolle om man fester stagene i takstoler eller svill. Har sett begge variantene i bruk.
Her er forøvrig en god forklaring på hvordan man fjerne 2 av 3 undergurter. På engelsk.
https://www.finehomebuilding.com/1992/10/01/framing-a-cathedral-ceiling
Nøkkelparagrafen er denne:
You can get away with removing two out of every three collar ties because the eaves-wall plate acts as a horizontal beam. It transfers the outward thrust of the two intervening 16-in. o. c. rafters out to where the opposing plates are tied together by the remaining collar ties.
Da blir det 120cm mellom hver stag.
Å sette cc120 mellom sperrene med stag bør nok gå å få til (er vanlig med dette avstandet i eks. Sverige) og det er selvfølgelig også mulig å sette inn mellomsperrer, slik at det blir cc60.
Men å ta vekk 2/3 stag på en typisk norsk takkonstruksjon, med cc60 og muligens høyere snølaster enn linken?, da med 180cm mellom stagene - det er noe som i hvert fall bør regnes på.
Absolutt, her skal det regnes! Men greit å ha noen ideer til hva som muligens kan la seg gjøre først
Da kan man kanskje få hele stua (og kjøkkenet) uten undergurt/strekkstål.
Alternativt ha noen ekstreme dimensjoner på takåser som går over hele rommet uten støtte?
Større høgde gjer jo naturligvis større vindlast.
Ein anna måte å unngå undergurt er å lage ein trekant i overgang vegg/tak, det låser av veggen og flytter kreftene fra taket ned i grunnmur. Eg har både denne løysinga og løysing som nevnt av deg med heile bøyde limtre dragere (tre-ledd ramme med kumme hjørner) i løa mi.
https://www.byggahus.se/ladugardsinspirerad-villa-i-aspen
Legg merke til tykkelsen på veggene. Her er hele kjøkkenbenken plassert inni ytterveggen. I tillegg ser man at veggen stikker utenfor benkeplata, og bærebjelkene er innenfor dette også. I tillegg er det sikkert isolasjon på yttersiden av benken. Altså er nok veggene over 1m tykke.
Tykkelsen på veggen er bare en illusjon. blar man ned i artikkelen, ser man utstikket på utsiden.
også plantegningen viser hvordan de har "jukset" med veggtykkelsen.
men skikkelig stilig hus dog.
Løsningen for å holde veggene sammen her er sikkert samme prinsipp som i tegningen til oblygre over.
Jeg skal ikke bygge et bolighus denne gangen, men en låve/lager/verksted-aktig bygning. Ikke fullt 40.000.000 i budsjett heller
Jeg anser det ikke som juks at veggene bare er så tykke der de trenger å være det - altså ved de 3 søylene/takstolene på hver side hvor det mangler undergurt. Ved de øvrige søylene/takstolene er det enten gavelvegg , innervegg eller hems (som gir undergurt). På disse tre stedene er det altså behov for tykk yttervegg for å skjule den nødvendige avstivingen som følge av manglende undergurt - og de har klart å skjule/utnytte dette til kjøkkenbenk, tv-vegg og vinduskarmer med sitteplass.