972
32
0
Ny bolig - NFL område i Sandnes
25
0
Ny bolig under oppføring i NFL område utenfor Sandnes
Familie på 4 har lenge drømt om ny bolig etter at gamle huset vi bodde i hadde sett sine beste dager for lenge siden.
Planleggingsprosesen startet i 2017 og med små barn tok det sin tid.
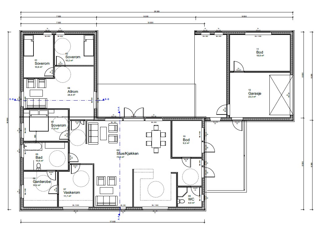
Vedlagt plan og fasadetegninger + tidlige illustrasjoner laget av meg selv om hvordan vi såg for oss huset.
Det har selvsagt blitt noen endreinger, største er vel kledningen som ble byttet fra Royal brun til Sort
Bolig på 200 m2 + 50 m2 garasje/ bod






Familie på 4 har lenge drømt om ny bolig etter at gamle huset vi bodde i hadde sett sine beste dager for lenge siden.
Planleggingsprosesen startet i 2017 og med små barn tok det sin tid.
Vedlagt plan og fasadetegninger + tidlige illustrasjoner laget av meg selv om hvordan vi såg for oss huset.
Det har selvsagt blitt noen endreinger, største er vel kledningen som ble byttet fra Royal brun til Sort
Bolig på 200 m2 + 50 m2 garasje/ bod







Busker å diverse som ble ryddet etter grovstikking August 2019
Etter mye frem og tilbake med kommunen ang utslippstillatelse fra renseanlegget måtte vi til med jordprøver. (Kommunen krevde nytt infiltrasjonsanlegg på avløp og dermed måtte vi ta jordprøver)
Kingspan Biodisc kjøpt inn.
Jordprøvetaking
2 bøtter levert til korngraderingsanalysen
Resultat var nedslående.
Begge masser du leverte havner i Infiltrasjonsklasse 1 (Norsk vann rapport 178-2010).
Massene er svært usorter og inneholder mye finstoff (fraksjon < 0,063 mm). Dette betyr at du skal etter Norsk vann rapporten 178-2010 gjennomføre en infiltrasjonstest for å bestemme infiltrasjonsevnen, som ikke la seg kalkulerer presis nok i denne typen masse. Dårlig sortering og høy finstoffandel av massen gjør at evnen må bestemmes i feltundersøkelse for å oppnå et representativt resultat.
Ble mye frem og tilbake etter dette. Endte opp med at jeg kom i kontakt med en pensjonert ingenør som i alle år hadde jobbet med infiltrasjon mm.
Kort fortalt og mange tusenlapper fattigigere fikk han igjennom at vi kunne bruke de eksisterende spredgrøftene fra det gamle huset som faktisk fungerer helt fint selv om massen som ble levert til analyse motsier det delvis.
EN GLEDENS DAG! Søknad endelig godkjent - rivning og oppføring av erstatningsbolig i LNF.
Da var det bare å hoppe igang å grave
Litt skruing hører til ::)) En liten oljelekkasje
Valgt å bruke Sundolitt ringmur RE45. Veldig enkelt å sette opp (så lenge det ikke blåser for mye)
4 Januar 2020
Klar for å støpe ringen
Bunnledning lagt - Isolasjon - Radon duk - Radon brønn - Lufting til peis - armering og varmekabler
Støping av plate
15 Februar 2020
Junior passer på at plata er fuktig
Renseanlegg blir installert
Vi bestilte modul hus fra VLund Bygg i Vanse. Dvs ferdig utvendig klar for taktekking. Levert med alle yttervegger og innervegger i element.
Resten valgte vi å ha som egeninnsats!
Noen bilder fra produksjons hallen i Vanse
Dagen vi hadde ventet lenge på!
Endelig kom leveransen. Føltes som en liten evighet å vente på dette. Ble utsatt til etter påske pga været. Mye vind og regn hele vinteren var ikke optimalt for montering tidligere.
Fikk derimot fantastisk vær de dagene Vanse Bygg var hos oss.
Etter 6 timer var veggen montert og sjåfør pakket og reist